发布者: 杰立装饰浏览次数:
深圳市杰立装饰设计工程有限公司再传捷报,又成功签约了坂田动车国际大厦。
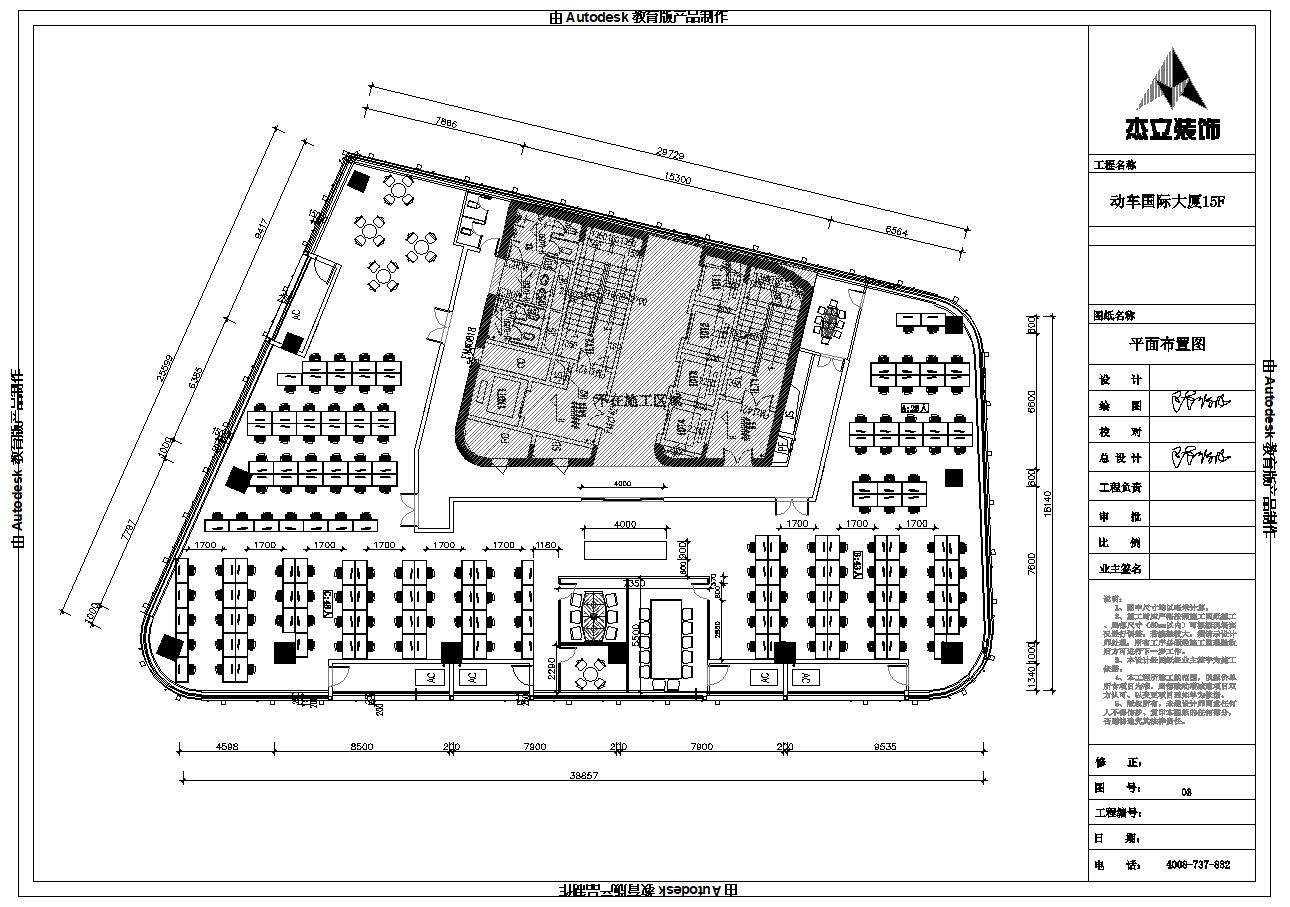
该项目位于深圳市龙岗区坂田街道布龙路与坂雪岗大道交汇处。

项目名称:坂田动车国际大厦
项目地址:深圳市龙岗区 动车国际大厦
签约时间:2018年6月
设计风格:现代风格
空间格局:总经理室、会议室、洽谈室、前台、办公区域、休闲区等;
设计主材:玻璃隔断、条形铝材、方块地毯、瓷砖地板等;
现代风格以简洁的表现形式来满足人们对空间环境那种感性的、本能的和理性的需求,现代简约风格非常讲究材料的质地和室内空间的通透哲学。一般室内墙地面及顶棚和家具陈设,乃至灯具器皿等均以简洁的造型、纯洁的质地、精细的工艺为其特征。尽可能不用装饰和取消多余的东西,认为任何复杂的设计,没有实用价值的特殊部件及任何装饰都会增加建筑造价,强调形式应更多地服务于功能。室内常选用简洁的工业产品,家具和日用品多采用直线,玻璃金属也多被使用。少即是多,多即是少。以宁缺勿滥为精髓,合理的简化居室,从简单舒适中体现生活的精致。
部分平面方案
部分效果